Construction de la crèche « Pierrots et Colombines »
Limoux (11)
moa : Communauté de communes du Limouxin
moe : Atelier APA / Cros & Leclerc (m) / ISAO / Ecozimut
Montant travaux : 2 000 000,00 € ht
concours
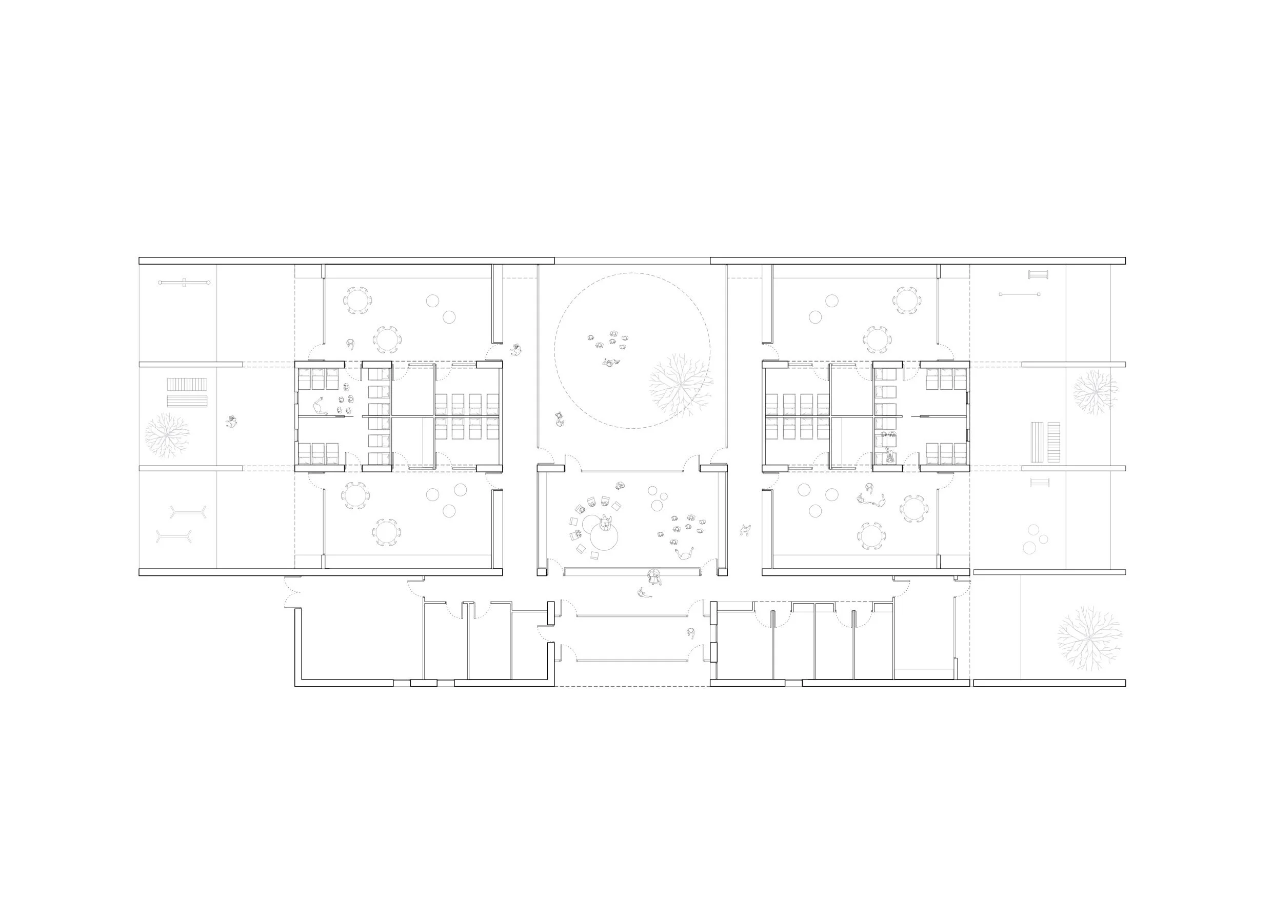
Construction de la crèche « Pierrots et Colombines »
Limoux (11)
moa : Communauté de communes du Limouxin
moe : Atelier APA / Cros & Leclerc (m) / ISAO / Ecozimut
Montant travaux : 2 000 000,00 € ht
concours