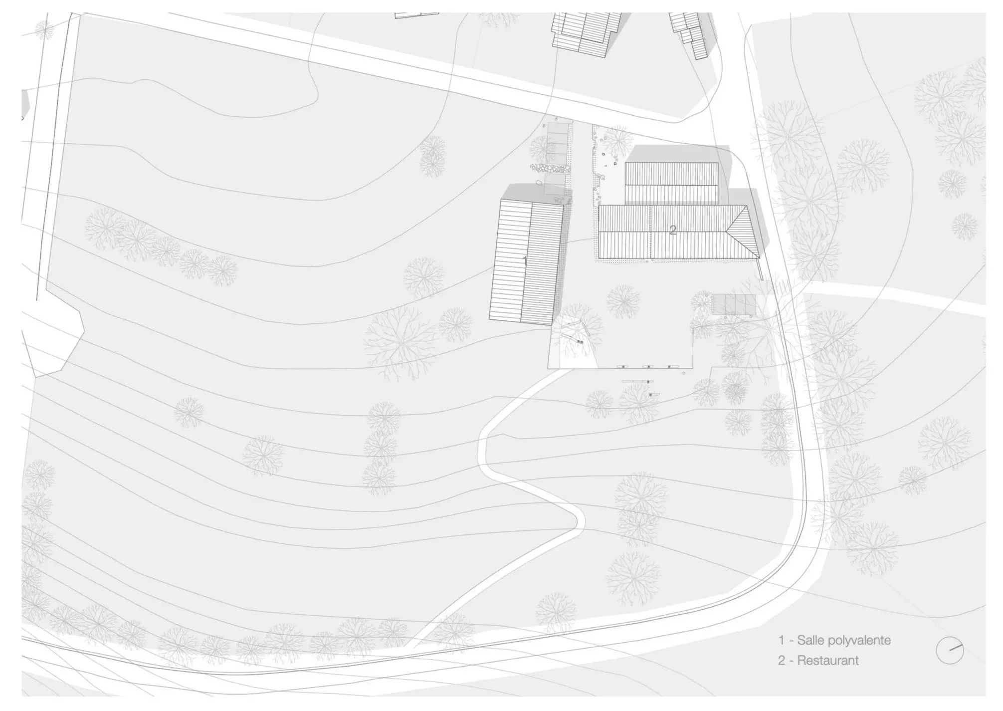
Création de la centralité villageoise du Cap d’Arbon
Estadens (31)
moa : Mairie d’Estadens
moe : Atelier APA (m) / Pollen Paysage / Isao / Satec / Gamba
Montant travaux : 1 850 000 € ht
concours
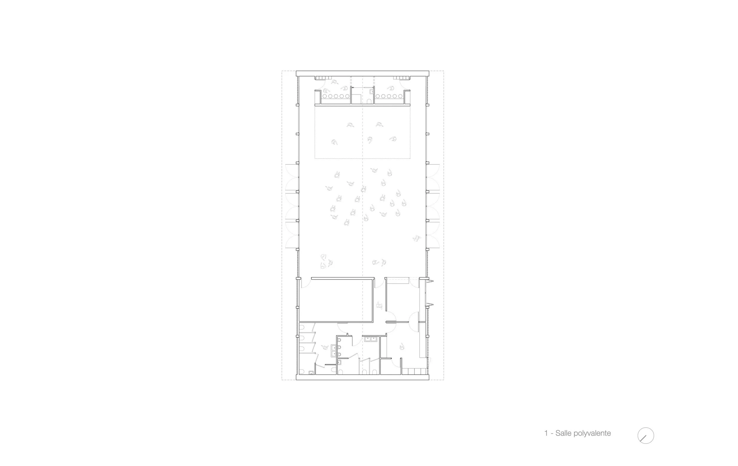
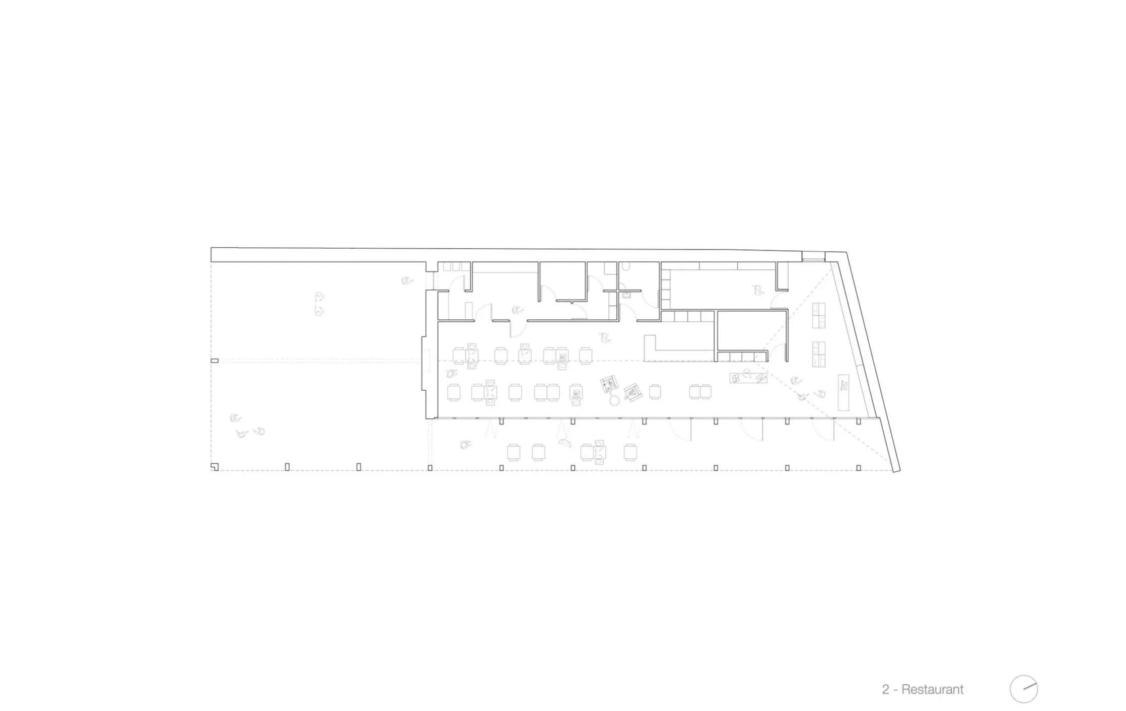
Création de la centralité villageoise du Cap d’Arbon
Estadens (31)
moa : Mairie d’Estadens
moe : Atelier APA (m) / Pollen Paysage / Isao / Satec / Gamba
Montant travaux : 1 850 000 € ht
concours